og1

hansa klinik
[entwurf "exorzismus", II.sem. ma]

projektpartner: steffen kirchberger
betreuer: prof j. bolles-wilson

Das Gebäude des Lufttrasportkommandos am Hohenzollernring, Ecke Manfred-von-Richthofen-Straße wurde zur NS-Zeit gebaut und in Kriegszeiten als Luftgaukommando genutzt. Von hier sind zahlreiche Luftangriffe auf gegnerische Gebiete geplant worden, bei denen zahlreiche Zivilisten ihr Leben verloren. Der Umbau eines solchen Gebäudes verlangt nach einem besonderen Umgang mit der Bausubstanz.
Der Denkmalschutz sieht eine Instandhaltung der Räume, Strukturen und Fassaden vor. Doch darf man ein Bauwerk mit einer solchen Geschichte vor Verletzungen schützen? Natürlich zeugt es vom Einsatz der damaligen Architektur doch ist zweifelsohne die geschichtliche Rolle, die das Gebäude gespielt hat, von größerer Bedeutung. Noch heute wird es bei Angehörigen der Opfer, besonders derer der Luftangriffe, Trauer, Wut und Unverständnis auslösen. Diese Tatsache führt uns letztendlich dazu, den Denkmalschutz zu übergehen und die Außenwirkung des Gebäudes an seine schreckliche Geschichte anzupassen und sie so zurück ins Bewusstsein seiner Betrachter zurückzuholen. Die bislang harmlos wirkende Hülle des Gebäudes vermittelt den Eindruck eines straffällig Gewordenen, der sich, seiner Schuld bewusst, vor einer Verurteilung zu verstecken versucht. Mit einer auf den ersten Blick eindeutigen Kennzeichnung des Bauwerks, sprich einer bewussten Stigmatisierung wird der Betrachter wieder zum Denken angeregt und die Aufmerksamkeit auf die grausame Vergangenheit gelenkt.
Selbstverständlich ist den neuen Nutzern nicht damit geholfen, in einem Mahnmal des Nationalsozialismus zu sitzen. Um dem Gebäude für die Zukunft eine Chance auf einen intakten Platz in der Stadt zu geben, muss eine Neubeseelung stattfinden. Dies geschieht sicherlich durch die Implantierung einer neuen Funktion und neuen Nutzern, wie es auch schon in der Vergangenheit geschehen ist, doch muss auch baulich nachgeholfen werden. Die gewohnten Strukturen müssen ein Stück weit aufgebrochen werden, standen sie doch seit ihrer Planung auch für die Idealismen des Naziregimes.


Stigmatisierung durch Schwärzung


Die Bedeutung der Farbe Schwarz ist eindeutig. Das Gebäude wird eingefärbt und der gewünschte Effekt der neuen augenfälligen
Außenwirkung tritt ein.
Sofort begreift der Betrachter, dass dieses Gebäude neben seiner dunklen Hülle auch eine dunkle Vergangenheit hat. Das Schwarz legt sich über sämtliche Bauteile und die unterschiedlichen Materialien treten in einheitlichem Aussehen ihre Kollektivstrafe an.


Neuer Kern in alter Hülle


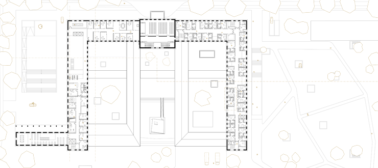
Für eine neue Nutzung wird das Gebäude entkernt. Das neue Innenleben tritt im Bereich des Daches als strahlender Körper über den alten Fassaden hervor und setzt somit ein Signal in den öffentlichen Raum. Der Turmähnliche Aufbau verstärkt nochmals diese Wirkung und dient als Display für die neue Nutzung. Das Pendant zu diesem Aufbau findet sich im Frühstücksraum des Patientenhotels.


Unterirdische Zugänge


Um die Fassade in ihrer Wirkung nicht zu beeinträchtigen und um sie nicht durch Öffnungen zu zerschneiden, erfolgt der Zugang zum Gebäude über das Kellergeschoss. Vom Straßenniveau gelangt man ins Untergeschoss über einen abgesengten Platz. Von diesem erreicht er eine hohe Verteilerhalle, die den Auftakt einer Abfolge von Räumen ist, die wie Perlen an der Magistrale aufgereiht sind. Auf der östlichen Seite des Gebäudes befindet sich ein weiterer abgesenkter Platz, der als externer Zugang zum Patientenhotel und Reha-Bereich dient und den Zugang zum Park ermöglicht

 

Interne Wegeführung


Wie die Magistrale bilden auch die Flure im Gebäude eine Raumsequenz. Versetzte Blöcke und Vorstöße zur Fassade erzeugen eine durch Licht und Dimensionen gegliederten Raum. Hierbei wird die Übersichtlichkeit durch eine Blickachse gewahrt. Um auch die Geschosse untereinander zu Verbinden sind die Raumaufweitungen an den Fassaden als Galerien ausgebildet. Diese Gliederung der Flure steht im Gegensatz zu dem Erschließungssystem des Altbaus, das durch monotone Türfolgen